(See below for the transformation of the Safeway Store.)
Marina Safeway Sign, Ellice and Wall
It was one of the tallest, free-standing landmarks in the West End for 46 years. In December 2010 the Safeway sign at Ellice and Wall came down. (Thanks for the folks at DigginIT for letting me know !).Marina Safeway Sign, Ellice and Wall
Here's how the day went:
Marina Safeway Store, Ellice and Wall
The sign was original to this, Winnipeg's first 'Marina Style' Safeway, which opened in 1964. The style was named for the prototype store on Marina Boulevard in San Fransisco.
This was for Safeway, and many retailers, their 'golden age' in terms of architecture. Suburban stores were now set behind acres of parking off of increasingly busy thoroughfares and needed a little something extra to stand out. Safeway had a number of designs in the late 50s and 60s to give their stores 'curb appeal'. (For more on these designs)
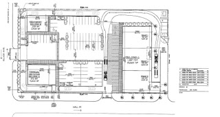
The store at Ellice and Wall has sat vacant for over a year, ever since Safeway moved to a new store on Ness Avenue. It will soon get a major revamp that will remove the trademark roofline and subdivide it into three retail units. The parking lot will be home to a couple of retail outlets (one a Cambrian Credit Union, the other undetermined). (For more on the plan)
The only operating Marina style store left in Winnipeg is on North Main Street. The sign is original, but it's the more common 'one dimensional' version, not the flared, two sided model once at Ellice and Wall.
Related:
See my four-part 'Safeway in Manitoba' series:
- Safeway in Winnipeg Part 1 - Setting Up Shop
- Safeway in Winnipeg Part 2 - The Boom Years
- Safeway in Winnipeg Part 3 - 1939 to 1949
- Safeway in Winnipeg Part 4 - Sweeping Styles
- Related Safeway Maps
UPDATE:
Construction of Credit Union on site where sign was.
Starting in August 2011 the renovations on the store began:









































7 comments:
Ah, for those golden days before big-box store owners realized that they could get away with ugly throwaway stucco buildings...
Thanks for the update, and thanks also for the excellent earlier series on Safeway stores and their unique architecture. Even though the Marina style stores went up throughout a good-sized part of North America, they'll always remind me of home!
Awww, sad to see it go! I liked the inukshuk version, too. I will continue to mourn the loss of a Safeway within walking distance of my house. That city doc says it's to be strip mall-ified in to three parts.
Any speculation or rumours as to what bank/CU and restaurant are going in?
I also enjoyed your previous series on Safeway stores, and now notice the old school ones around the city all the time. Thanks!
Great pictures.
Great exterior design for retail and offices seems a rare thing nowadays.
That Fast food drive-thru, could it be another Timmy's? They've been popping up everywhere and there isn't one already inside the "West End triangle", if you will.
People really learn nothing from history, do they?
Cities that, for whatever reason, hang on to their classic architecture never regret it. At some point, it becomes a point of pride and tangible economic benefit.
Cities that flatten any distinctive architecture and replace them with ugly, cookie-cutter, unimaginative and soulless crap never ever feel that way, and it's rare that such places last more than 30 years.
Can't be a McDonald's as theres one down the street, same with Starbucks and Tim Hortons. (although I guess it could be a Tim Hortons).. theres no Burger King anywhere near the St James area so that might be the fast food joint they're putting up there. It's a bit out of the way though. The nearest other ones would be Downtown or I guess the one on Notre Dame. It's not a Wendy's. I did hear that five guys burger and fries was expanding to Manitoba (possibly via another blog) but that's an odd spot to build their first location. Oh well. Does the pdf say anything?
I was thinking a Steinbach Credit Union and a Timmies.
It's just off the beaten track enough to probably not be a good location for a McDix / Burger King type place.
It WOULD be nice to think that it would be something a little different.
I didn't see any reference to specific businesses on the pdf or the zoning signs posted on-site. With how quickly they can toss up those 'disposable' buildings now I'd imagine that we'll know in a month or two !
Post a Comment